- 成都優普環保設備工程有限公司
- 電話:183-2853-8768
- 郵箱:1728748202@qq.com
- 網址:m.ispop.com.cn
- 地址:四川省成都市郫都區成都現代工業港北片區港泰大道38號
當前位置:首頁>>回轉式機械格柵除污機
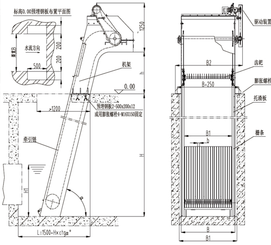
UP-GSHZ回轉式機械格柵除污機

結構及特點:
回轉式機械格柵除污機(又稱“固液分離器”),結構緊湊、電氣控制簡單,便于實現自動化;耐蝕性優、能耗小、噪音低;除污動作連續、排污干凈、分離效率高。該設備是由 ABS 工程塑料、尼龍或不銹鋼制成的特殊形耙齒,按一定的排列次序裝在耙齒軸上形成封閉 式耙齒鏈,其下部裝在進水渠水中。當傳動系統帶動鏈輪作勻速定向旋轉時,整個耙齒鏈自上而下運動,并攜 帶固體雜物從液體中分離出來,流體通過耙齒間隙流出去,整個工作狀態連續進行。
由于耙齒的特殊結構形狀,使耙齒鏈攜帶雜物到達上端反向運動時,前后耙齒產生相對自清運動,促使雜 物依靠重力脫落,設備后面可設置旋轉的清污刷,進一步除凈滯留在耙齒污物,如需要定貨時需注明。
用途:
廣泛應用于城市污水處理廠、自來水廠、泵站 電廠進水口,自動攔截并清除水中的漂浮物,保證下道 工序的正常運行;也可用作紡織、印染、屠宰、制革、 造紙、制糖、釀酒、食品加工中的固液分離。
主要技術參數:
|
|
設備寬度 |
300 |
400 |
500 |
600 |
700 |
800 |
900 |
1000 |
1100 |
1200 |
1300 |
1400 |
1500 |
|
有效柵寬B2 |
B2=B-160 |
|||||||||||||
|
設備總寬 |
B3=B+360 |
|||||||||||||
|
有效柵隙 |
2、3、5、8、10、15、20 |
|||||||||||||
|
耙鏈速度 |
約2m/min |
|||||||||||||
|
電機功率 |
0.37~0.75 |
0.55~1.1 |
0.75~1.5 |
1.1~2.2 |
1.5~3 |
|||||||||
|
安轉尺寸 |
安裝角度 |
60°、65°、70°、75°、80° |
||||||||||||
|
渠寬B1 |
B1≥B+70 |
|||||||||||||
|
渠深H |
800~1500 |
|||||||||||||
|
排渣高度h |
400~1500(常規按600) |
|||||||||||||




